2 story spacious modern accommodation in a BOUTIQUE BUILDING WITH ONLY 4 APARTMENTS .

2 large bed rooms 

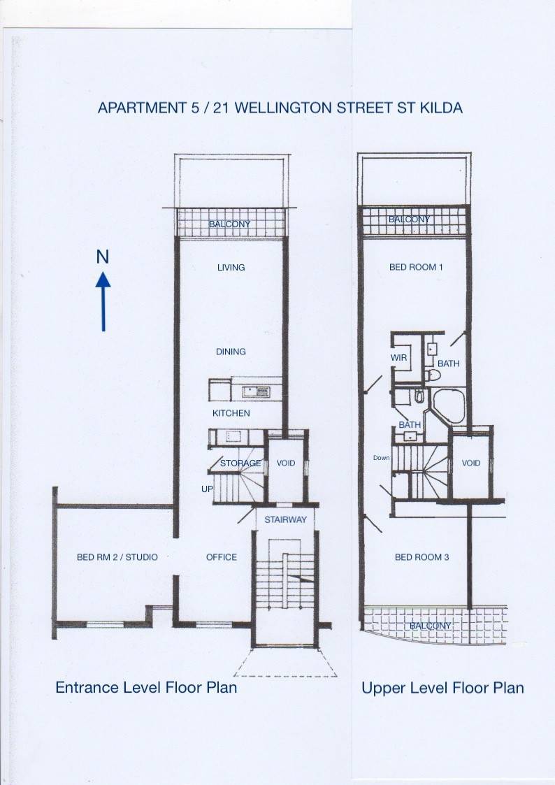
2 living rooms and a separate office room (see attached floor plan for the layout}

Stunning large office with a 16 foot high curved ceiling and abundance of natural light. 

Fully equipped  electrical kitchen with abundance of good storage,granite bench top and b/fast bar , dishwasher ,oven and microwave oven.

Living area has polished concrete floors and opens up to a large balcony facing north with city views.

UPPER LEVEL:

Large master bed room with balcony and city views, a W.I.Robe and split heating and cooling system. 

Elegant big bathroom

Second large bed room with large BUILD IN ROBES, polished tasmanian oak timber floors, balcony, abundance of light, large linen cupboard.

Second bath room.

 

The apartment also offers one secure basement car space , secure lockable storage room, bicycle racks.

 

Ideal Central Location,walking distance to Fitzroy Street, Chapel Street,Tram stops going in all directions and Windsor Station.

EXTRAS:

Ideal plan layout for 2 couples to share.

Ideal  for  a home and a large office.

CCV intercom

3 2 1
Available Leased
Address Unit 5/21 Wellington St, St Kilda
Price $850 per week
Property Type Rental
Property ID 644
Category Apartment

Agent Details

Tara Hore photo

Tara Hore

0458 440 558
View Profile