ELEGANT FAMILY HOME

This elegant Edwardian semi-detached home is situated in one of Camberwell's finer streets characterised by its early period homes and quality real estate. Presented with elegant period attributes including timber fretwork veranda and hallway, coloured leadlight windows and high ceilings with roses.

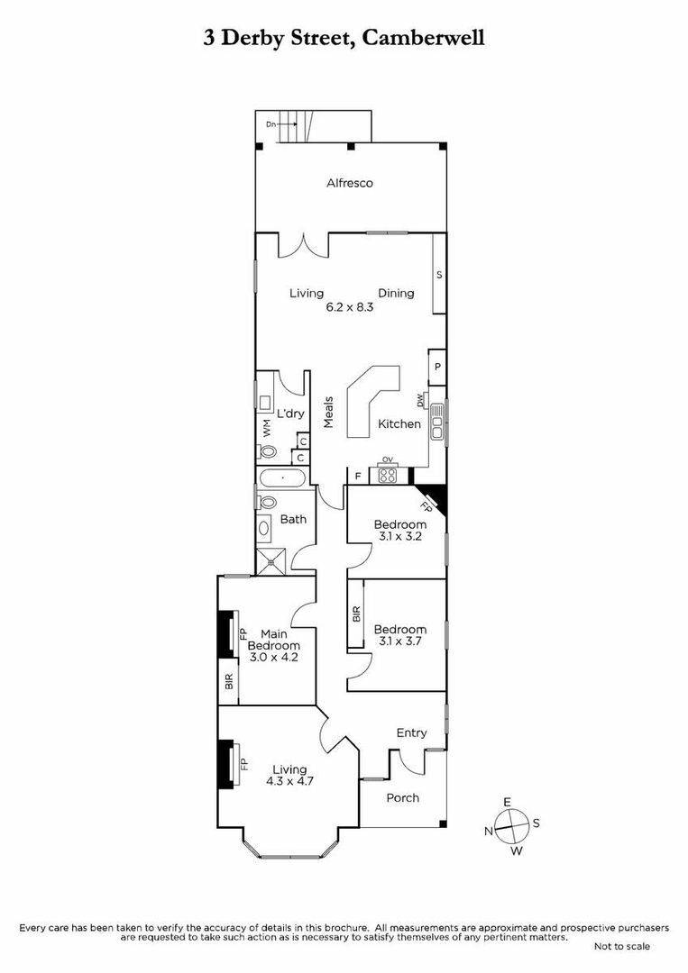
This home features a Baltic Pine hallway opening to front sitting room with bay window, three bedrooms and two modern and recently renovated bathrooms one combined with laundry. Through to the rear extension incorporating a generous living and dining room including near new and well-equipped kitchen with entertainers island bench, Miele dishwasher, Miele oven and cooktop. The open plan living leads out to an elevated covered veranda for alfresco-dining overlooking a lovely deep rear garden.

Other features include ducted heating, decorative open fireplaces, R/C air-conditioner, under house storage, easy care landscaped gardens and front off-street parking

3 2 1
Available Leased
Address 3 Derby St, Camberwell
Price $950 Per Week
Property Type Rental
Property ID 563
Category House

Agent Details

Tara Hore photo

Tara Hore

0458 440 558
View Profile