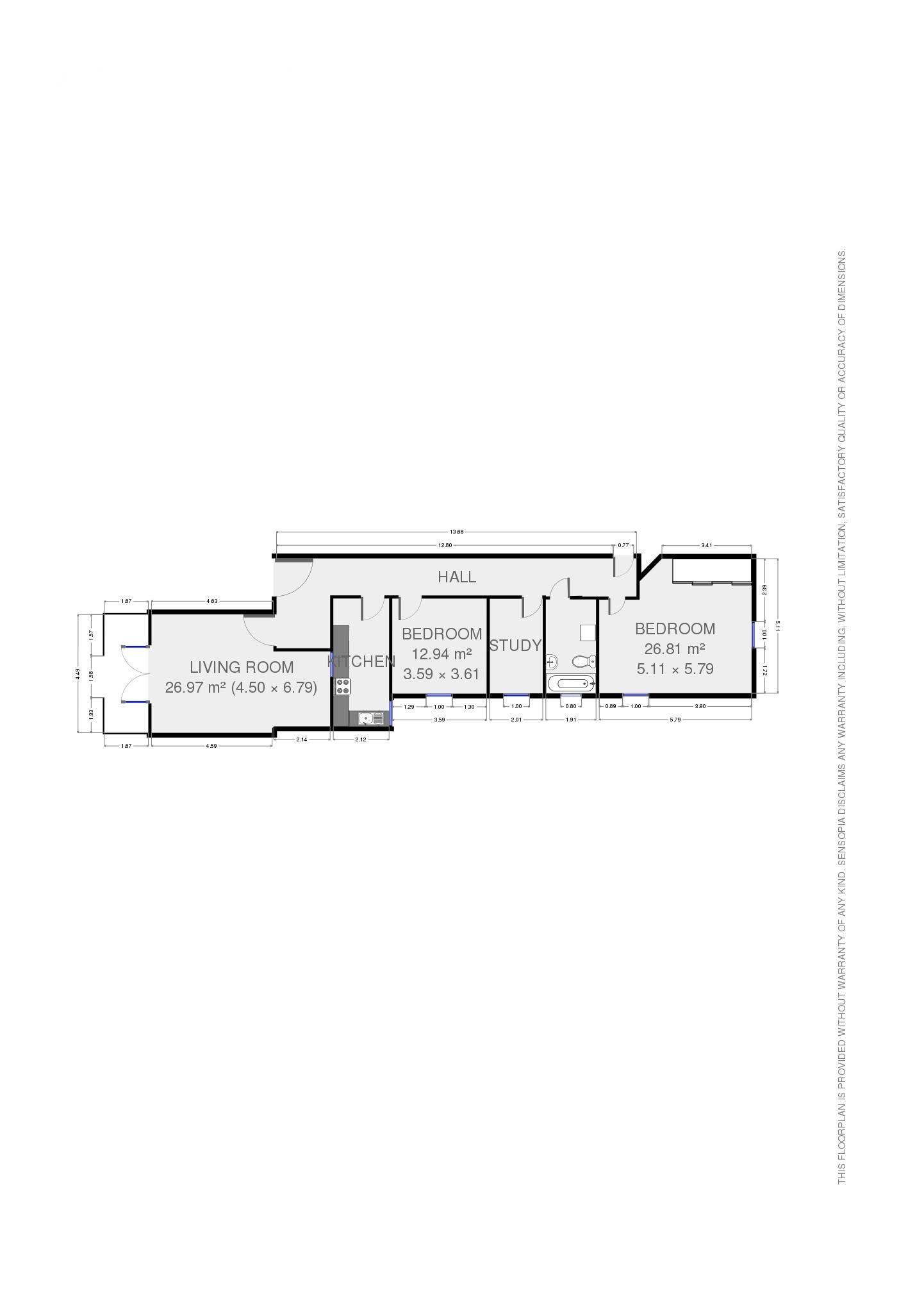
AS BIG AS A HOUSE WITH A SEPARATE STUDY OR SMALL BEDROOM

This large apartment set in a block of only 4 offers the architecture, character and comfort of its era. Open plan living/dining with a cosy gas heater as well as a split system heating cooling  opens to a quaint westerly facing balcony through French style double doors. Fully renovated spacious kitchen with great storage, stainless steel appliances including dishwasher and servery to the dining. Enormous master bedroom with ornate fire place, split system and built in robes (being installed prior to tenancy), good size 2nd bedroom and a study/small bedroom. The fully renovated main bathroom with shower over bath, washing machine taps and wash trough cap off the many great features of this property
This property does not have a designated carspace, however, there are 3 carparks for the 4 apartments, working on a first come first serve basis, parking permits can be sourced through the council. (please note the master bedroom has floorboards not carpet)
Positioned next to the Botanical Gardens, in the best and most sought after pockets of Melbourne these opportunities don’t present themselves very often.
* No AirBnB, subleasing*
 
2 1
Available Leased
Address 1/120 Park Street, South Yarra
Price $600 Per Week
Property Type Rental
Property ID 546
Category Apartment

Agent Details

Tara Hore photo

Tara Hore

0458 440 558
View Profile