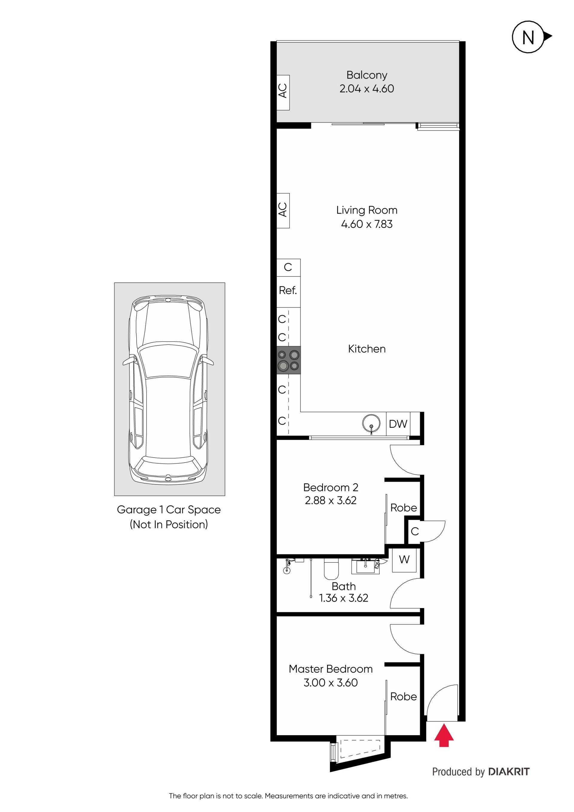
GENEROUS 2 BEDROOM IN FANTASTIC LOCATION

Boasting large open plan kitchen/living. Walk in the front door and 2 your left are 2 bedrooms both with generous built in robes and both furnished with carpets so plush you’ll love jumping out of bed every morning just to feel them. Both bedrooms are separated by a stylish modern bathroom with laundry facilities. Enter the spacious open plan kitchen offering generous storage plenty of benchspace and all the mod cons of stainless steel appliances and dishwasher. Generous living room with split system heating/cooling leading to a good size balcony. This property also offers 1 off street carspace + visitor parking in the building. Situated in the heart of Prahran 50 meters from Greville Street and Prahran Train Station, a few minutes walk to Chapel Street, Prahran Market at the end of the Street, this location offers it all. Train, Tram, bike or walk in any direction and you'll be led to a world of opportunities.

2 1 1
Available Leased
Address 308/47 Porter St, Prahran
Price $500 Per Week
Property Type Rental
Property ID 524
Category Apartment

Agent Details

Tara Hore photo

Tara Hore

0458 440 558
View Profile