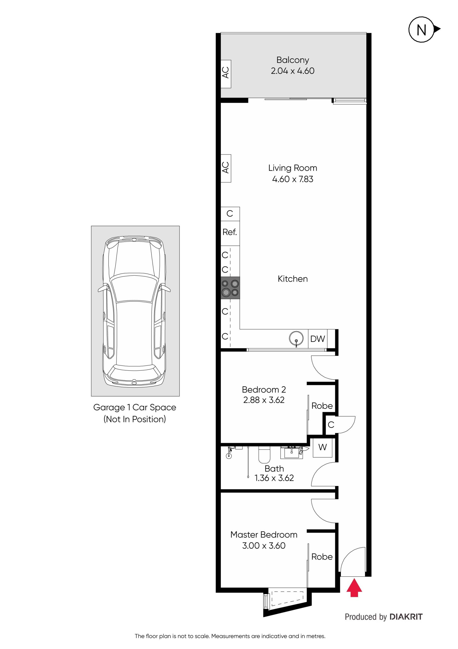
HUGE SUN FILLED LIVING ROOM

Walk in the front door and 2 your left there are 2 bedrooms both with generous built in robes. The bedrooms are separated by a stylish modern bathroom with laundry facilities. Enter the generous living space and to your left is the kitchen with uniquely large benchspace, generous cupboards and all the mod cons including stainless steel appliances and dishwasher. Generous living room leading to a good size balcony. Split system heating cooling. This property also offers 1 off street carspace + visitor parking in the building. Situated in the heart of Prahran 50 meters from Greville Street, a few muinutes walk to Chapel Street, Prahran Market at the end of the Street, this location offers it all. Train, Tram, bike or walk in any direction and you'll be led to a world of opportunities.

To view this property please be sure to register your details.

To book an inspection click on the ‘book inspection’ button and follow the prompts.

 

2 1 1
Available Leased
Address Unit 201/47 Porter St, Prahran
Price $500 Per Week
Property Type Rental
Property ID 290
Category Apartment

Agent Details

Tara Hore photo

Tara Hore

0458 440 558
View Profile