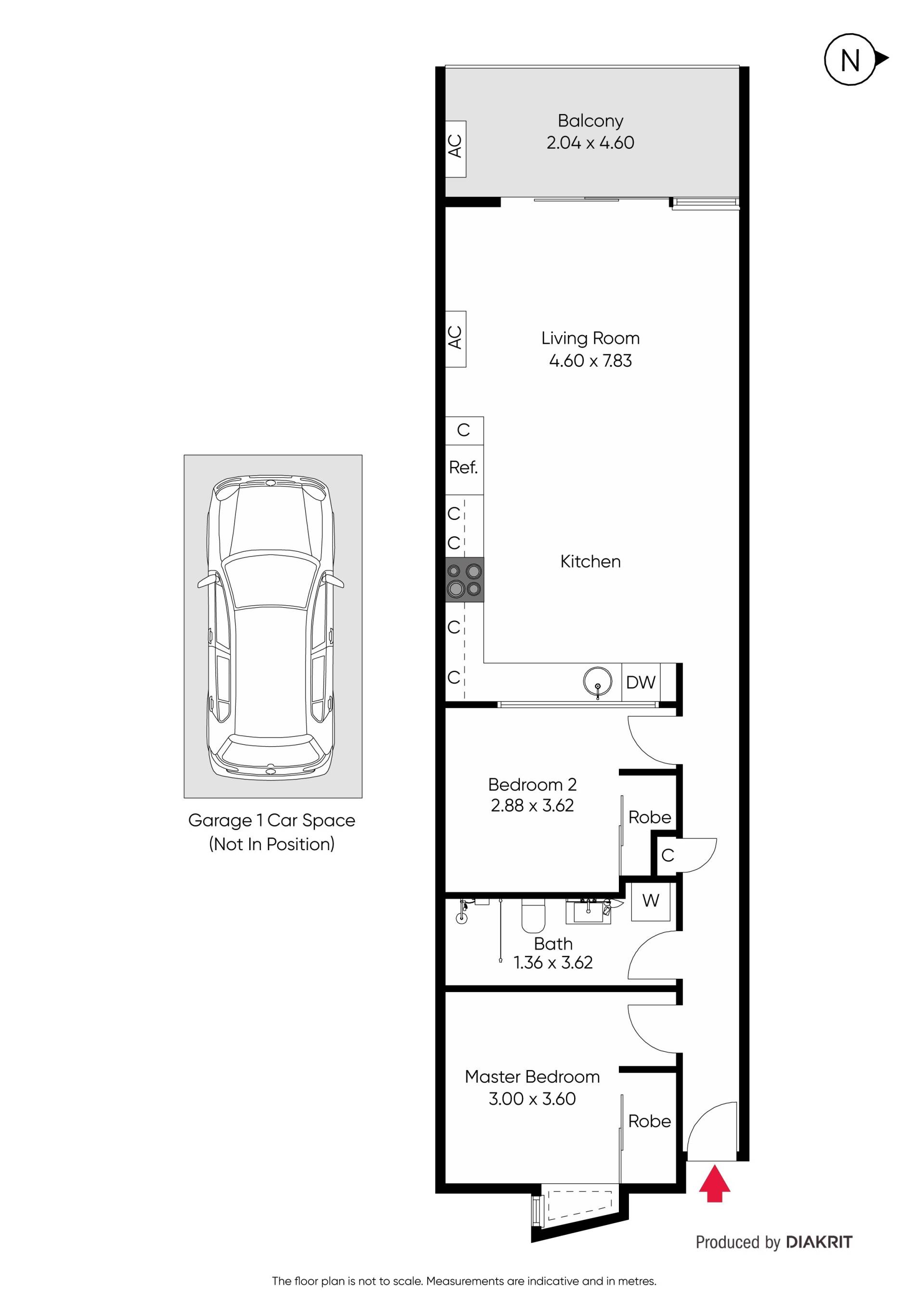
HUGE SUN FILLED LIVING ROOM

Walk in the front door and 2 your right there are 2 bedrooms both with generous built in robes. The bedrooms are separated by a stylish modern bathroom with laundry facilities. Enter the generous living space and to your right is the kitchen with uniquely large benchspace, generous cupboards and all the mod cons including stainless steel appliances and dishwasher. Generous living room leading to a good size balcony. Split system heating cooling. This property also offers 1 off street carspace + visitor parking in the building. Situated in the heart of Prahran 50 meters from Greville Street, a few muinutes walk to Chapel Street, Prahran Market at the end of the Street, this location offers it all. Train, Tram, bike or walk in any direction and you'll be led to a world of opportunities. 

Please note the floorplan used in this advertisement is of a mirror image apartment. 

To view this property please be sure to register your details. To book an inspection click on the ‘book inspection’ button and follow the prompts. Should you not register and book your inspection you may not be advised of any cancellations or time changes to advertised inspections.

2 1 1
Available Leased
Address Unit 202, 47 Porter St, Prahran
Price $590 Per Week
Property Type Rental
Property ID 248
Category Apartment

Agent Details

Tara Hore photo

Tara Hore

0458 440 558
View Profile