6 MONTH LEASE AVAILABLE FURNISHED OR UNFURNISHED

Available to lease for 6 months (neg) and is being offered either furnished or unfurnished

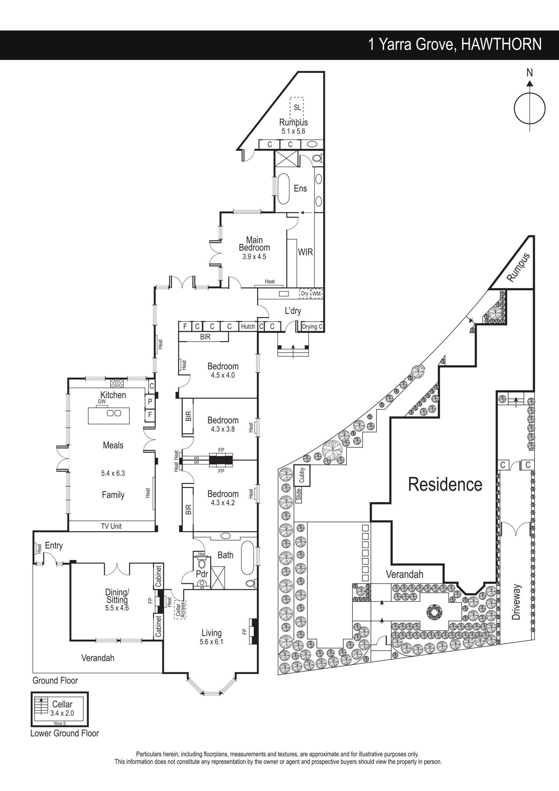
Captivating double fronted c1892 Victorian residence showcases classic elegance and contemporary chic living in Hawthorn's enviable St James Park Estate. Beyond a picturesque façade with tessellated tiled return verandah, this home reveals a lavish single level layout defined by traditional heritage features and tastefully transformed interiors to create the ultimate in sophisticated comfort and style. Introduced by a gracious entry and wide central hallway, the abundant and flexible accommodation immediately reveals stunning formal spaces including grand study or versatile 3rd living/5th bedroom with marble fireplace and a sumptuous lounge room with gas log fire and bay window embracing lovely leafy outlooks. Privately positioned at the rear of the home is the stylish master suite boasting breathtaking Italian marble ensuite with freestanding bath, double shower & dual vanity, luxurious sky lit walk in robes and a private courtyard exhibiting vibrant artist commissioned mural. Additional four substantial bedrooms 3 with built in robes and OFPs, serviced by the pristine tiled central bathroom with stone topped vanity and free standing bath. The striking marble kitchen is a focal point of the family domain, well-appointed with European appliances, dishwasher and custom cabinetry, it overlooks the expansive open plan living and dining space that flows out through French doors to the bluestone paved alfresco entertaining area and lush level lawns, ensuring effortless indoor/outdoor relaxation and recreation. Extensive highlights include hydronic heating, reverse cycle heating & cooling, powder room, sizeable laundry with external access, underground cellar with 1000 bottle capacity, studio/retreat or gym space, substantial custom built concealed storage including an in built work space and 2nd fridge, hardwood floors, plantation shutters, pendant lighting, double glazing, acoustic fence, outdoor sound system, cubby house, intercom, alarm, secure outdoor storage area and tandem off street parking. This immaculate home provides seclusion, tranquillity and timelessness in a truly outstanding position metres from the Yarra River & moments from Bridge Rd, Glenferrie Rd & Hawthorn West shops, cafes & restaurants, Morang Road Reserve, St James Park, esteemed local & private schools, Hawthorn train station & trams, Yarra bike & running trails, plus easy accessibility to the CBD via major arterials.

Please feel welcome to call Tara Hore 0458440558 or email tara@tlhrealestate.com.au to arrange an inspection or discuss.

5 2 3
Available Leased
Address 1 Yarra Gr, Hawthorn
Price $2500 Per Week (6 Month Lease) Fully Furnished
Property Type Rental
Property ID 224
Category House

Agent Details

Tara Hore photo

Tara Hore

0458 440 558
View Profile